Business & Products 事業と製品

  • TOP
  • 事業と製品

EPC事業 EPC Business

弊社では「Engineering(設計)」「Procurement(機器調達)」「Construction(施工)」をワンストップで行っております。
品質とコストのバランスに優れたネクストエナジー製品を用いて、日本で研修を受けたベトナム人技術スタッフによる設計施工が可能です。

太陽光発電設備の建設

私たちのゴールは、単に太陽光発電設備を設置することではなく、お客様にとっての「確かな価値」と「持続的な信頼」を築くことです。
真に価値あるプロジェクトを実現するためには、「正確な設計」「最適な機器選定」「標準化された施工」の3つの要素が欠かせません。私たちはこれらを軸を強みとし、太陽光発電によるエネルギーソリューションを提供しています。

正確な設計・最適機器選定・標準施工による太陽光発電設備の建設

設計

太陽光発電設備の導入がお客様にとって満足いただけるものになるか、大部分はこの段階で決まるといっても過言ではありません。一つとして同じプロジェクトは存在しないからこそ、私たちはお客様ごとの条件に合わせた最適設計にこだわり、最大の発電と安心をご提供する設備を実現いたします。

綿密な現地調査による情報収集

現地訪問を行い、屋根上などの太陽電池モジュール設置箇所、配線ルート、系統連系点(接続箇所)を確認いたします。

プロジェクトの現地調査と評価

プロジェクト調査

電気設備の現地点検

電気室調査

設備設計および発電量シミュレーション

ネクストエナジー製の最先端技術を備えた高効率の太陽電池モジュール、コストバランスに優れた信頼性の高いインバーターを用いて最適な設備設計をいたします。高精度な発電量シミュレーションも私たちの特徴の一つです。

現場調査データの解析

現調データ解析

設計図面の作成

設計図の作成

設計シミュレーションの実施

シミュレーションの実行

機器調達

親会社である​ネクストエナジーは20年以上にわたる自然エネルギー業界での実績を持ち、世界有数のTier 1メーカーとも強力なパートナーシップを築いています。そのネットワークを通じ、機器の安定供給、競争力のある価格、そして最先端の技術をお客様にご提供いたします。

Tier1メーカーとの戦略的パートナーシップ

20年以上の経験と信頼を誇るネクストエナジーは、世界的なTier 1メーカーと戦略的なパートナーシップを構築しています。そのため、お客様には品質とコストバランスに優れ、最新の技術を備えた設備をご提供可能です。

安定供給と最新技術を支える戦略パートナー

品質管理から物流までワンス
トップ対応

私たちは機器・資材の品質管理を徹底、必要なタイミングで迅速に供給する体制を構築しており、安全・確実に施工現場へ納品しています。

品質管理から物流までのワンストップ対応

品質保証

太陽光発電設備の設置後、保証期間中はお客様のサポート窓口として、責任を持って対応いたします。保証内容、期間は製品、サービスによって変わりますので、お問合せください。

太陽光発電設備の安心保証とサポート 太陽光発電設備の安心保証とサポート

施工

私たちはスキルがあり熱意に溢れた施工チームを擁しており、安全第一で高品質な太陽光発電設備の施工をいたします。

経験豊富な施工チーム

私たちの施工サービスは、訓練を受けたサイトエンジニアらによって行われます。高所作業や電気、安全に関する資格を全員が取得しており、安全で確実な施工をお約束いたします。

建設作業チームのスタッフ

施工チームメンバー

クレーンによるパネル吊り上げ

クレーンでの楊重作業

太陽電池モジュールの配置作業

太陽電池モジュール間配り

太陽電池モジュールの取り付け作業

太陽電池モジュール取付作業

専門的なプロジェクト管理

全てのプロジェクトに専任の経験豊富なサイトマネージャーを配置。工程進捗や施工品質を一元管理し、工期遵守でのお引渡しを約束いたします。

週次プロジェクト管理会議

プロジェクト管理定例会

厳密な進捗管理

厳格な進捗管理

終業時の現場点検

終業時の現場点検を厳格に実施すること。

安全管理の徹底

私たちは安全を第一に考えています。作業員は必ず保護具を着用し、仮設昇降足場や安全柵も標準で設置。施工期間中は毎日の朝礼と危険予知活動を行い、安全な施工環境を維持いたします。

日々の朝礼と危険予知活動

毎日の朝礼と危険予知活動

安全柵の設置作業

安全柵設置

玉掛けワイヤー点検作業

玉掛けワイヤーの点検

系統連系および試運転

系統連系(電力会社との接続)の前に、私たちは厳格な完成検査を実施します。また、一定の試運転期間を設けて正常に設備が動作しているか確認を行い、すべてのパラメータが基準を満たした場合に発電を開始、お客様への引渡を行います。

各種許認可申請業務

電力会社(EVN)との系統連系協議はもちろん、消防、建設、環境、税関といった太陽光発電設備の建設に関わる各種の許認可申請業務を専任のスタッフが代行、確実に実施いたします。

機電設備の設置

私たちは、太陽光発電分野で培った技術力を活かし、各種機電設備の設計・施工も手掛けています。スマートで安全、そして省エネ効果の高い空間創りを通じて、お客様にとっての快適で効率的な労働環境を実現します。お客様のご要望に応じた提案をいたしますので、ぜひご相談ください。

玉掛けワイヤー点検作業 玉掛けワイヤー点検作業

電気設備

ビル、工場、商業施設における電気設備は、私たちの日常に欠かせません。
私たちは、日本と中国に構える研究開発拠点を活かし、多様な電気設備の設計・施工サービスを提供しています。
・太陽光発電設備
・UPS / BESS 蓄電システム
・アクティブ高調波フィルターシステム
・エネルギー監視システム(BMS、SCADA)、火災報知監視システム

屋外電気設備の設置

電気設備の屋外設置

屋内電気設備の設置

電気設備の屋内設置

電気システム設計サービス

電気システム設計

BESS蓄電システム

BESS蓄電システム

機械設備

私たちは、未来志向のエネルギーシステムやリサイクル・再生技術を取り入れ、効率的・経済的で環境に優しい設備を提供しています。
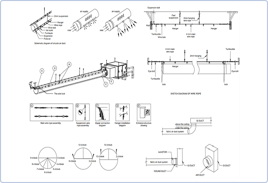
・空調設備システム(HVAC)
・冷却ファン・換気システム
・集塵システム

空調設備の設置作業

空調設備設置

室外機の設置作業

室外機設置

ケーブルラック取付作業

ケーブルラック取付け作業

冷却ファン・換気設備」

冷却ファン・換気システム

O&M事業 O&M Business

太陽光発電設備のオペレーション&メンテナンス(O&M)

太陽光発電設備は適切に維持管理をすることで、20年以上の長期に渡る稼働が可能です。私たちはプロフェッショナルなオペレーション&メンテナンスサービス(O&M)を提供いたします。

遠隔監視サービス

オンラインの遠隔監視システムを通じ、太陽光発電設備の稼働状況を監視いたします。設備の異常や不具合が発生した際には私たちのO&Mチームが対応、設備の安定稼働をお約束いたします。

システム稼働状況の監視

システムの稼働状況の監視

iSolarCloudオンライン監視システム

iSolarCloud・オンライン監視システム

定期点検・予防メンテナンス

私たちは、以下を含む定期点検、予防メンテナンスのサービスを提供いたします。

  • 太陽電池モジュール表面の清掃:埃、落ち葉、鳥の糞などの汚れを除去し、発電を最大化
  • システム全体の目視検査:架台・配線・接続箱・電線管などの状態を目視確認、問題があれば改善提案を実施
  • インバーターのメンテナンス:フィルター清掃、冷却ファン点検、接続部を確認
  • ボルト・ねじの緩み検査:増し締め対応
  • サーモカメラによる太陽電池モジュール検査:異常発熱、潜在的な故障箇所を早期に発見
インバーター室清掃

インバーター室清掃作業

太陽電池モジュール洗浄

太陽電池モジュールの洗浄作業

分電盤点検

分電盤定期点検

サーモカメラによるモジュール温度確認

サーモカメラによる太陽電池モジュールの温度確認

故障対応

万一の故障発生時には、私たちのO&Mチームにて問題個所の特定、原因分析、復旧に当たります。システム停止時間を最小限に抑え、安定稼働をサポートいたします。

太陽電池モジュール交換

太陽電池モジュール交換作業

インバータデータ確認と原因分析

インバータ運転データの確認・原因分析

機電設備の運用保守サービス

太陽光発電設備だけでなく、各種機電設備のパフォーマンス維持、省エネ、長寿命化を目的とした運用保守サービスをご提供します。

配電盤メンテナンス

配電盤メンテナンス

換気システム点検

換気システム点検

クーリングタワー点検

クーリングタワーの点検

CAD設計事業 CAD Design Business

設計支援サービス

多様な産業分野において、設計業務の効率と品質をいかに高めるかが競争力を生み出す上での鍵となっています。
その一方で、正確で専門的な技術図面を短納期で準備することは、多くの企業にとって大きな負担となっています。
私たちは日本で培った設計に関わる知識・経験・スキルをベトナムのスタッフに伝えることで、太陽光発電をはじめ、さまざまな業界のニーズに応じた設計支援サービスをご提供。「リモート設計部門」として、Cost(コスト)・Quality(品質)・Delivery(リードタイム)のすべてを最適化し、お客様の事業成長を支える信頼できるパートナーでありたいと考えています。

リモート設計支援サービスによるコスト・品質・納期最適化

太陽光発電図面作成サービス

戸建住宅の屋根設置から大規模な太陽光発電所まで、あらゆる規模のプロジェクトに必要な図面サービスを提供いたします。

配置図

衛星画像・建築図面・現地調査結果などの情報を基に最適な機器配置を設計。影の影響を最小限に抑えるアレイ間隔、配線経路の明示など、精度の高い図面を提供いたします。

機器設置詳細図

太陽電池モジュール取付金具、クランプ(端部・中間部)、インバーター(PCS)設置箇所などの詳細を明確に図面化いたします。

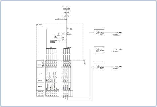
単線結線図

二次側のモジュールストリング、インバーター(PCS)、集電盤、そして一次側の系統連系点に至るまで、太陽光発電設備のシステム全体を明確に表現した単線結線図を提供いたします。

太陽光発電の配置図・詳細図・単線結線図・竣工図作成サービス

単線結線図

二次側のモジュールストリング、インバーター(PCS)、集電盤、そして一次側の系統連系点に至るまで、太陽光発電設備のシステム全体を明確に表現した単線結線図を提供いたします。

機器設置詳細図

太陽電池モジュール取付金具、クランプ(端部・中間部)、インバーター(PCS)設置箇所などの詳細を明確に図面化いたします。

竣工図

施工後に発生した変更を正確に反映した竣工図を作成いたします。

私たちのサービスが選ばれる理由

CAD設計スタッフ

CAD 設計チーム

太陽光パネル配置図

太陽電池モジュールレイアウト

単線配線図

単線結線図

ダクト詳細図

布製ダクトの詳細

多言語での対応

スタッフは日本語と英語の両方でご対応が可能です。言語の壁を感じさせないスムーズなコミュニケーションをお約束します。

プロジェクトスピードの向上

初期提案など案件数が多いが確度が上がっていない案件の作図を代行することで、お客様の技術チームが取り組むべき、付加価値の高い業務に専念できる環境を実現します。

固定費の削減

お客様の社内でCADオペレーターを採用・育成・管理・維持するコストを削減できます。

一貫した品質

弊社はすべての図面に統一されたプロセスと品質基準を適用しており、高品質のサービスを提供いたします。

高い柔軟性

お客様のニーズに応じ、人員を調整することで作業量の増減と期日の調整を行うことができます。

弊社はお客様の拡張部門と機能し、設計業務を迅速かつ効率的に進められるよう全力でサポートいたします。太陽光発電分野はもとより、その他産業分野の設計業務にも柔軟に対応いたしますので、ぜひ一度お困りごとについてご相談ください。サンプル図面のご提供も可能です。

サービス資料ダウンロード Download

Next Energy Vietnam Co.,Ltd.資料 太陽電池モジュール NER132M625E-NGD

太陽電池モジュール
NER132M625E-NGD

PDF:6.1MB/日本語・英語

サービス資料ダウンロード Download

Leave this empty:

必須会社名
必須お名前
必須メールアドレス
その他資料をご要望の
場合はコメントください。

下記内容をご確認いただき、同意の上、送信してください。

当ウェブサイト(以下「当サイト」といいます)はネクストエナジー株式会社(以下「当社」といいます)が運営をしております。このウェブサイトを利用する際には、以下の各事項をご了承くださいますようお願い申し上げます。また、当社は、このウェブサイトの利用条件を変更することがあります。
その際にはこの文書の改訂版を掲載することと致しますので、ご確認頂きますよう、お願い申し上げます。

個人情報に対する考え方
当サイトは以下の基本方針を定め、当サイトが保有する全ての個人情報を管理するため、全ての社員が本趣旨を理解し、遵守します。

個人情報の定義
当サイトは個人を識別しうる全ての情報を、個人情報として定義します。

プライバシーポリシー